3S Simplified for Sale - 426 Clementi Avenue 3 - D05 - Buona Vista - 426 Clementi Avenue 3 Singapore - 355 000 SGD - 1090590

355 000 SGD

Normal
LOH SING KUAN
Property Agent

Verified number: +6596508308

https://agent.sg/R001650D
Write message to

+65

Share this listing
Description

Blk 426 ,mid floor lift level,North south facing no noon sun,near clementi MRT,market,food court,clementi Malls,shopping,shall shops, coffee shop,swimming pool,sports center, HDB branch,
Man Hua primary n scenery school,
Convenient,

bus service no:
147,173,189,201,106,963,963r,,

Estate details

Sale

426 Clementi Avenue 3

426 Clementi Avenue 3 Singapore0

355 000 SGD

2

2

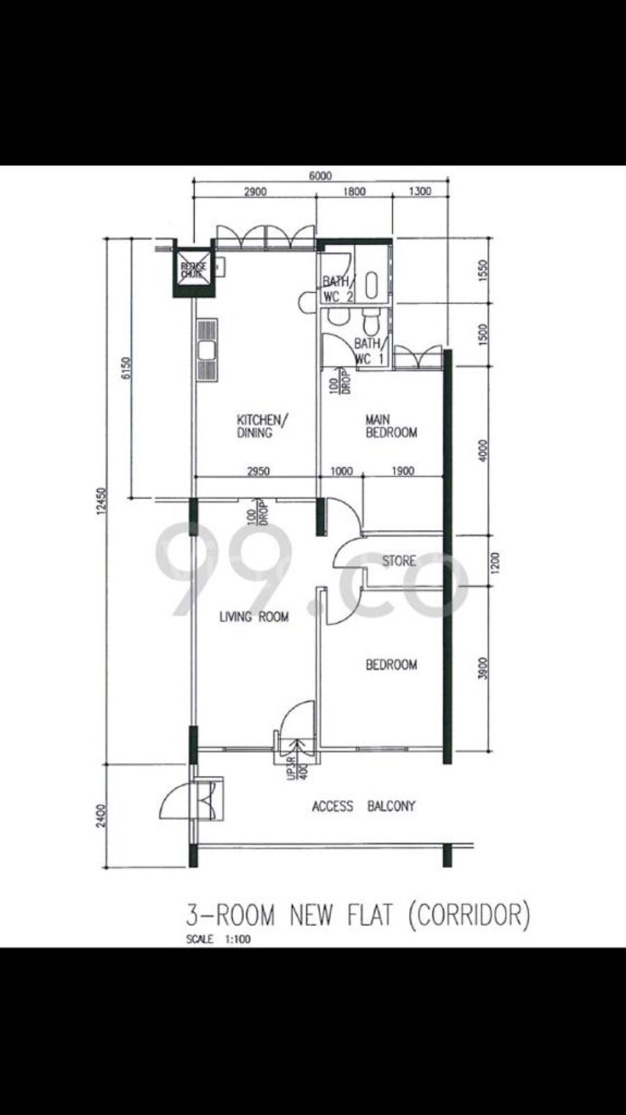
721 sqft

1090590

Photos of this HDB
Location of this property
More estate type list in D05 - Buona Vista