Condominium for Sale - Kingsford Waterbay - D19 - Punggol - Upper Serangoon View - 1 107 000 SGD - 94807

1 107 000 SGD

Guide price
LIM KOON HUAI
LIM KOON HUAI
Property Agent

Verified number: +6598488828

https://agent.sg/R042518H
Write message to

+65

Share this listing
Description

****** call/ SMS (*****) for viewing *********

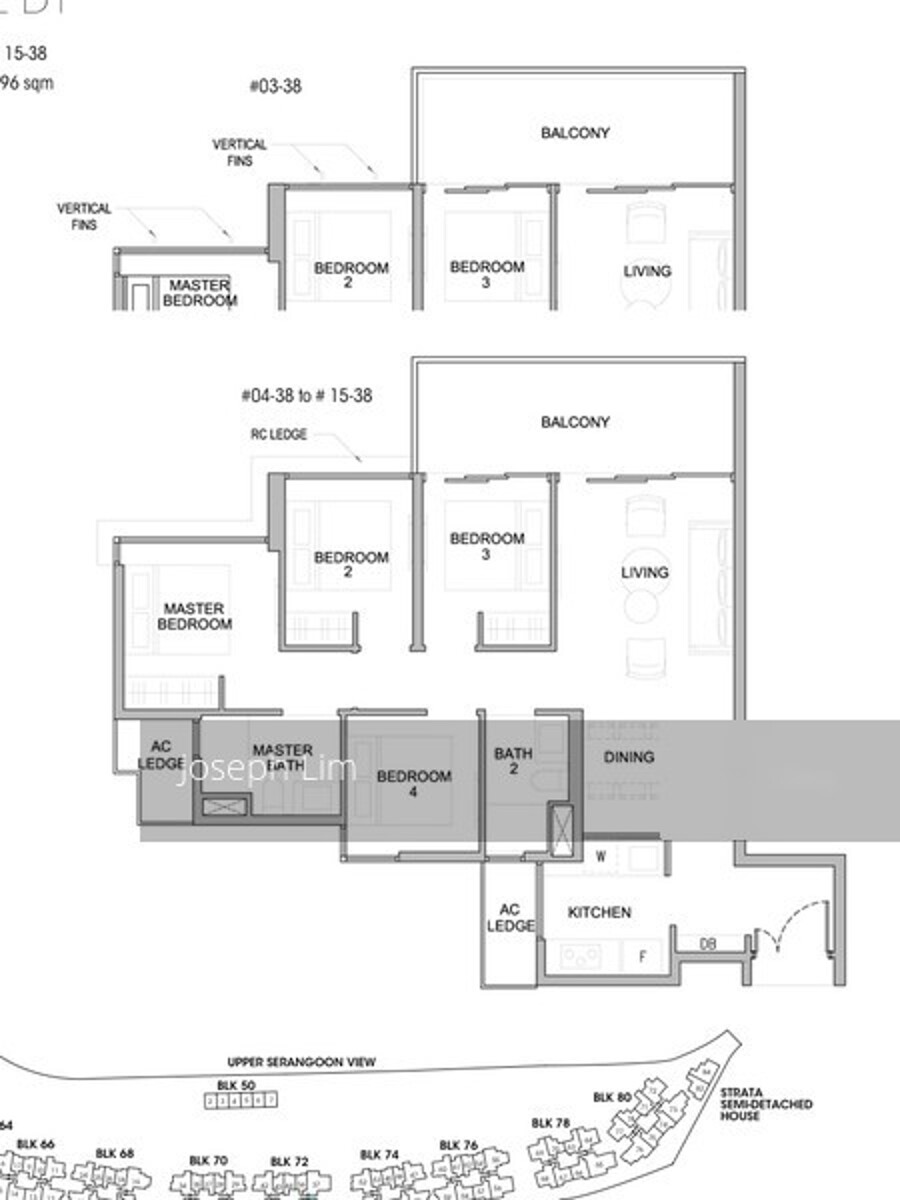
Condominium detail:

Full condominium facilities. 4 bedder at affordable price. All bedroom spacious to put queen size bed. Unblock view. It is convenient with 6 retail shops in the condo. There is childcare in the condo for your children.

Amenities:

2 mins walk to coffee shops/ restaurants/ cafe/ NTUC fair price/ provision shop/ clinic/ hair salon and etc. 20 mins drive to marina bay sand

****** call/ SMS (*****) for viewing *********

Estate details

Sale

Kingsford Waterbay

Upper Serangoon View72

1 107 000 SGD

Guide price

4

0

Condominium

1000 sqft

1107

94807

99-year Leasehold

Location of this property
More estate type list in D19 - Punggol