Executive condominium for Sale - iNZ Residence - D23 - Choa Chu Kang - iNZ Residence 72 Choa Chu Kang Avenue 5 Singapore - 776 000 SGD - 948757

776 000 SGD

Normal
U AUNG LIN
U AUNG LIN
Property Agent

Verified number: +6596307572

https://agent.sg/R042765B
Write message to Lin U

+65

Share this listing
Description

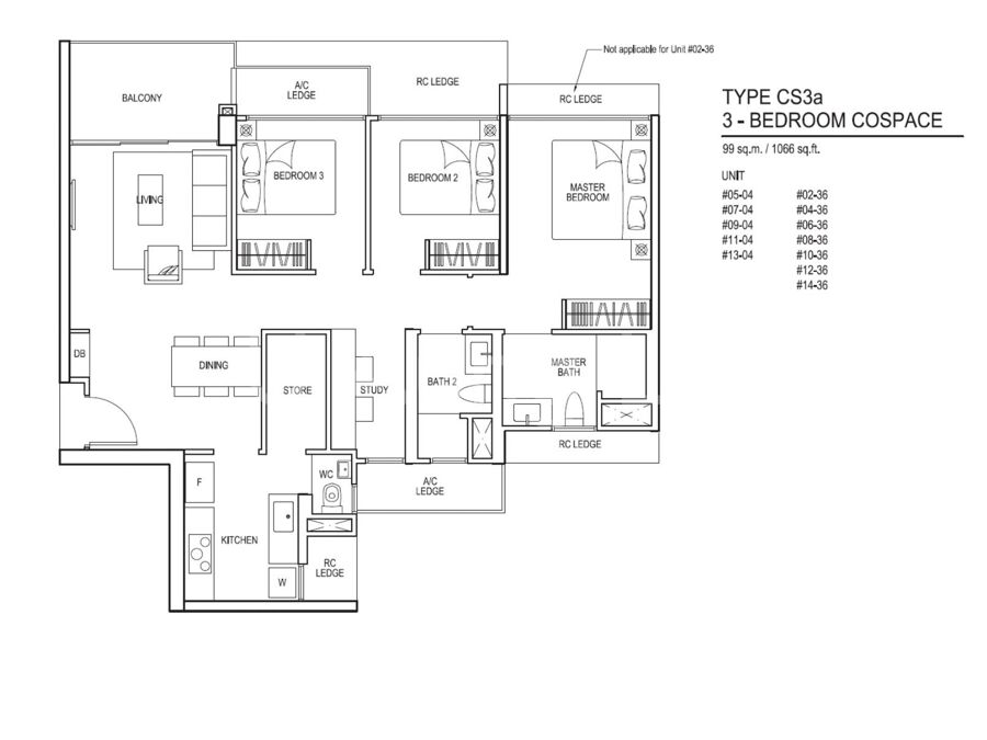
#02-21 3Bed Rooms Superior Type C4
Project Details
Project Name: iNz Residence
Developer: Qingjian Realty (Choa Chu Kang) Pte Ltd
Address: Choa Chu Kang Avenue 5, singapore
District: D23 Bukit Batok / Bukit Panjang
Property Type: Executive Condominium
Tenure: 99 years leasehold
Total Units: 497
Unit Mix: 2-bedroom to 5 bedroom Maisonette
Description

iNz Residence is the premium Executive Condominium with 497 luxurious units. It is the first in the West to offer cutting-edge smart living, an abundance of luxury facilities and ample living spaces for every lifestyle need. And as a residential development that strives to be ahead of its time, iNz Residence is also the first EC in the West to offer a tranquil Sky Garden and unique 5-bedroom maisonettes. With all these in place, you can look forward to experiencing a lifestyle elevated to new heights, only at iNz Residence. Over 60 luxurious facilities await you here at iNz Residence! From fun, fitness to feasting and more, iNz Residence has everything for you and family to enjoy life to the max. Everything is thoughtfully planned and set amidst lush landscaping to create an ambience of exclusivity that is sure to make every moment simply perfect. The Special TRX Fitness Deck, Tennis Court and Putting Green are just some of the many fun and exciting ways to get fit while indulging in your favorite sports. Bonding with families and friends at parties and gatherings are made easy via the convenience of a one-stop app. An elegant garden soiree, a family pool party, or a grand birthday banquet? Choose from a wealth of sophisticated venues, book it ogether with your event organiser and caterer, all with just a touch of a button on your smart devices. Prepare to revel in luxury like never before. Arrange for private dining amidst the lush surroundings. Or experience ultimate pampering and total relaxation at the Indulgence zone. And with two clubhouses and two swimming pools, including 50m Infinity Pool, you can always enjoy two different experiences for twice the fun, for you and your family. As the first EC in the West to offer its residents a Sky Garden, you will also have exclusive access to the great views and cooling breezes from this tranquil nature spot in the sky. Life doesn’t get any better than this.

Estate details

Sale

iNZ Residence

iNZ Residence 72 Choa Chu Kang Avenue 5, Singapore0

776 000 SGD

3

2

990 sqft

948757

Facilities
Key features:
  • Balcony
  • Low Floor
  • Greenery View
  • Pool View
Location of this property
More estate type list in D23 - Choa Chu Kang