Condominium for Sale - Thomson Grand - D20 - Ang Mo Kio - Thomson Grand 43 Sin Ming Walk Singapore - 4 600 000 SGD - 972594

4 600 000 SGD

Normal
BAI ZHENJIE, SYLVESTER
BAI ZHENJIE, SYLVESTER
Property Agent

Verified number: +6592289558

https://agent.sg/R014512F
Write message to

+65

Share this listing
Description

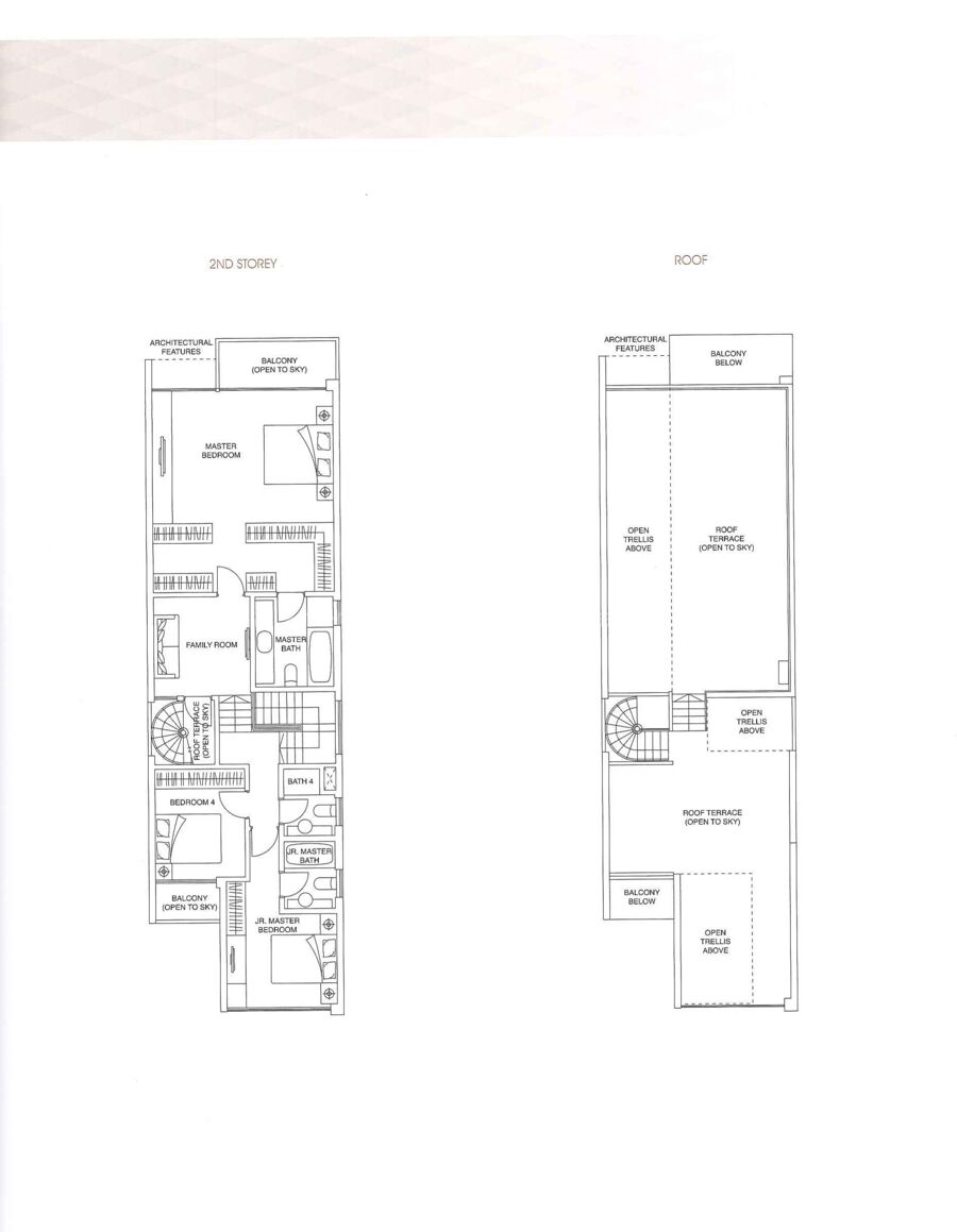
THOMSON GRAND condo For Sale.

3-story House.

Privacy and space of landed, convenience and facilities of condo.

House, 4BR + BS, 5317sf, 5 bath.
Family Room, PES, jacuzzi, roof garden. Direct access to pool.

Facilities of condo:
Gym, pools, indoor kids playground, golf simulator, spa, luxurious function room. Luxury living.

Eligible for Foreigner

Tenanted $6,500 til Aug 2020

Estate details

Sale

Thomson Grand

Thomson Grand 43 Sin Ming Walk, Singapore0

4 600 000 SGD

4

5

5 sqft

972594

Facilities
Key features:
  • Low Floor
  • Bomb Shelter
Photos of this Condo
Location of this property
More estate type list in D20 - Ang Mo Kio