Condominium for Sale - Thomson Impressions - D20 - Ang Mo Kio - Thomson Impressions 3 Lorong Puntong Singapore - 2 750 000 SGD - 954728

2 750 000 SGD

Normal
TAN ENG WEE
TAN ENG WEE
Property Agent

Verified number: +6582822646

https://agent.sg/R000397F
Write message to

+65

Share this listing
Description

You are in the precinct of Thomson, one of Singapore’s most coveted residential areas. Lush surroundings and a low-density population heighten its desirability. Amenities
abound, yet each one retains a warm, neighbourly touch. Nearby expressways connect you to every part of Singapore. And in the near future, accessibility will be further enhanced with the arrival of the Thomson MRT Line.

Home at Thomson Impressions means a world of gourmet delights right at your doorstep. Your every taste is well and duly catered for. Prepare to feast for
a smorgasbord of sumptuous indulgences awaits…

Myriad educational institutions are within close proximity. Ai Tong School, one of Singapore’s most popular primary schools, is within a 1-km radius
from Thomson Impressions.

Developer : NS PROPERTY (THOMSON) PTE LTD
Location : SIN MING AVENUE (LORONG PUNTONG)
No. of Units : 288
No. of Carparks : 288 + HANDICAP LOTS
Tenure of Land : 99 YEARS
Expected Date of T.O.P : ESTIMATED OCT 2019

Estate details

Sale

Thomson Impressions

Thomson Impressions 3 Lorong Puntong, Singapore0

2 750 000 SGD

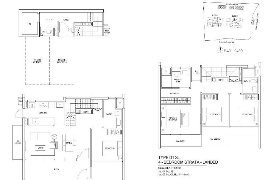
4

4

2 sqft

954728

Facilities
Key features:
  • Balcony
  • Renovated
  • Ground Floor
  • Bomb Shelter
  • Fibre Ready
  • Greenery View
  • Maid's Room
  • Utility Room
  • Pool View
  • High Ceiling
  • Patio / PES
Photos of this Condo
Location of this property
More estate type list in D20 - Ang Mo Kio