5I for Sale - Yishun Avenue 7 - D27 - Sembawang - Yishun Avenue 7 - 410 000 SGD - 80773

410 000 SGD

Negotiable
CHNG YONG YAN
CHNG YONG YAN
Property Agent

Verified number: +6596887122

https://agent.sg/R010432B
Write message to Derrick Chng

+65

Share this listing
Description

FOR SALE
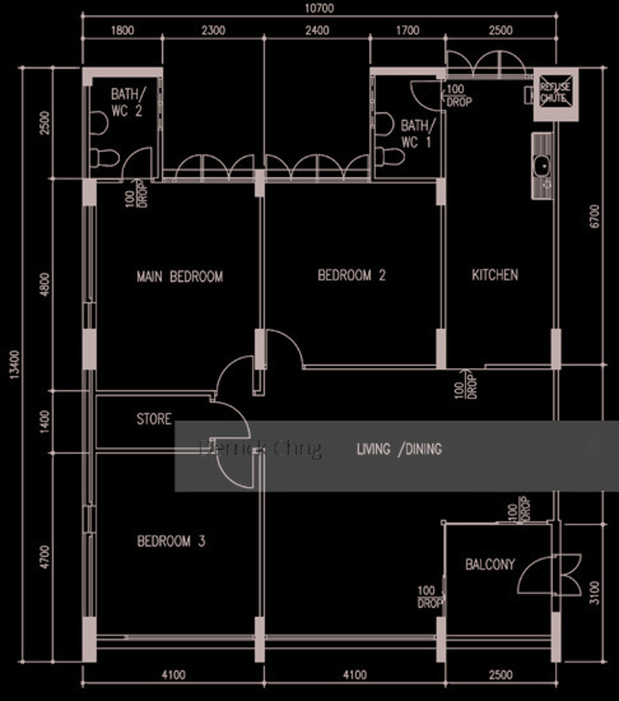
5I Blk 173 Yishun
Corner
Balcony
Very nice unit
Spacious
Lift Level

*****
Ahmad Ibrahim Secondary School
All Saints Home Yishun
Xishan Primary School
Yishun Town Secondary School
Yishun Industrial Park
Yishun MRT Station
Canberra MRT Station
North Park City, North-Point Shopping Centre, Nation Library Board

Call Derrick Chng @ *****

Estate details

Sale

Yishun Avenue 7

Yishun Avenue 7173

410 000 SGD

Negotiable

3

0

5I

1303 sqft

314

80773

99-year Leasehold

Photos of this HDB
Location of this property
More estate type list in D27 - Sembawang