Apartment for Sale - Alex Residences - D03 - Tiong Bahru - 28 Alexandra View - 2 039 000 SGD - 75705

2 039 000 SGD

Negotiable
LIEW MEI KAM
LIEW MEI KAM
Property Agent

Verified number: +6592708263

https://agent.sg/R018927A
Write message to

+65

Share this listing
Description

* Alex Residences *

1 Bedroom 474 sqft #36-04 from $994,300
2 Bedroom 657 sqft #30-03 from $1,324,471
2 Bedroom 678 sqft #30-02 from $1,442,424
3 Bedroom 883 sqft #24-09 from $1,608,358
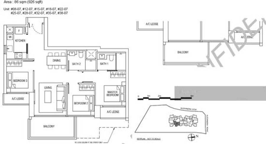
3 Bedroom 926 sqft #29-01 from $1,793,284
3 Bedroom + Utility 1023 sqft #30-08 from $1,978,210

ALEX RESIDENCES

Developer: Singland Homes
Tenure: 99 yrs
Site Area: 69,981sqf
TOP: Estimated 2018
Total units: 429

Why Alex Residences?

Development Of 1 Tower With 429 Residential, 40 Storey High With Panoramic View.

Location Prime District 03 , Located in Private Residential Enclave

Convenience – 3 Minutes Walk to Redhill MRT Station

Short 10 minutes drive to the City, CBD, Marina Bay District & the Southern Waterfront area.

Stunning 40-storey tower with multi levels of sky terraces and amazing views

Connectivity - Easy access to major expressways such CTE, PIE and AYE

Educational Schools within 1KM such as Zhangde Primary School, Gan Eng Seng Primary & Secondary School & Crescent Girls’ School

Investment – Ready pool of tenants working nearby in the CBD Area
Please call/SMS *****3 for discussion and appointment
Features: City View, Corner Unit
Fixtures: Intercom, Air Conditioning

Estate details

Sale

Alex Residences

28, Alexandra View28

2 039 000 SGD

Negotiable

3

3

Apartment

1044 sqft

1953

75705

99-year Leasehold

Location of this property
More estate type list in D03 - Tiong Bahru