Condominium for Sale - Sophia Hills - D09 - Orchard Road - Sophia Hills 11 Mount Sophia Singapore - 2 114 000 SGD - 962553

2 114 000 SGD

Normal
LAI YOKE KWAN
LAI YOKE KWAN
Property Agent

Verified number: +6597843728

https://agent.sg/R057784J
Write message to

+65

Share this listing
Description

OPHIA HILLS in D09 - Orchard
ready for immediate occupation

- along Mt Sophia Road in D9 behInd Plaza Singapura
- 7 mins walk to Ghoby Ghaut MRT
- Tenure" 99 yrs
- # no of units = 493 comprising of 1, 2, 3 and 4 bedrooms.
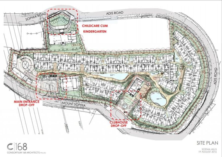
- 1st development with 3 conservation buildings which will be used for Clubhouse, Childcare/Kindergarten and F&B restaurant

Estate details

Sale

Sophia Hills

Sophia Hills 11 Mount Sophia, Singapore0

2 114 000 SGD

3

2

958 sqft

962553

Facilities
Key features:
  • Balcony
Location of this property
More estate type list in D09 - Orchard Road