Condominium for Sale - The Foliage - D05 - Buona Vista - Pasir Panjang Road - 1 500 000 SGD - 83627

1 500 000 SGD

Normal
PRAVIN KUMAR VASANTLAL
PRAVIN KUMAR VASANTLAL
Property Agent

Verified number: +6590682309

https://agent.sg/R014139B
Write message to Pravin kumar

+65

Share this listing
Description

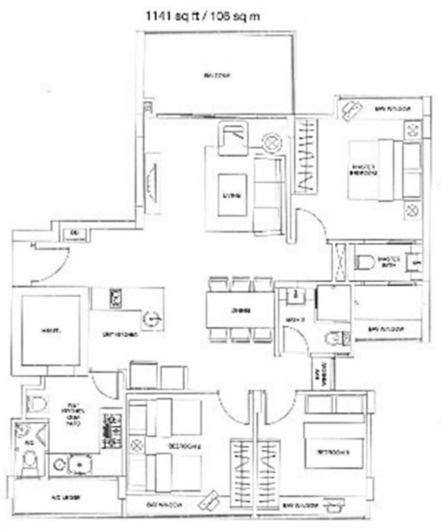
1141sqft
3 Bedrooms
Near Haw Par Villa MRT
balcony facing east
Pool view
Wet and dry kitchen
Quiet facing

Estate details

Sale

The Foliage

Pasir Panjang Road370

1 500 000 SGD

3

0

Condominium

1141 sqft

1314

83627

Freehold

Location of this property
More estate type list in D05 - Buona Vista