Forsale.com.sg » D25 - Woodlands » D25 - Woodlands 5S » 787C Woodlands Crescent

5S for Sale - 787C Woodlands Crescent - D25 - Woodlands - 787C Woodlands Crescent Singapore - 430 000 SGD - 1071148

430 000 SGD

Normal
JOANNE CHIA SZE LING
JOANNE CHIA SZE LING
Property Agent

Verified number: +6583333327

https://agent.sg/R043260E
Write message to

+65

Share this listing
Description

** AUSPICIOUS HOUSE ! OWNER UPGRADING **
** All can buy **

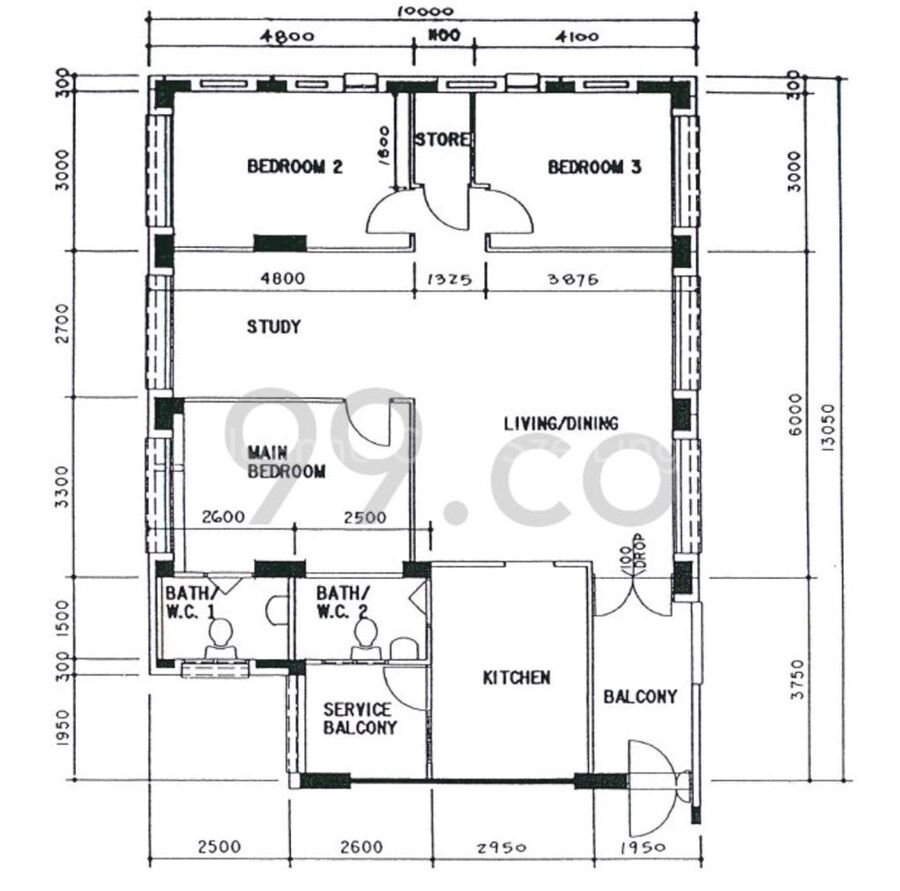
2 bedrooms, 2 toilets

^ High floor
^ Corner unit
^ Unblocked, bright and windy
^ Very well-kept move-in condition
^ Expensive marble floor
^ Expensive Granite material kitchen top
^ Large master bedroom with converted walk-in wardrobe
(Converted 2 bedrooms into a huge master bedroom)
^ Across the street to Kampung Admiralty (one-stop shop market, mall, makan eateries, childcare, eldercare, etc)
^ 2 bus stops to ADMIRALTY MRT or walk 7-8 mins

Please contact Joanne ***** / David ***** for daily viewing

Read : *****

Estate details

Sale

787C Woodlands Crescent

787C Woodlands Crescent Singapore0

430 000 SGD

2

2

1 sqft

1071148

Facilities
Key features:
  • High Floor
  • Corner Unit
  • Renovated
  • Bomb Shelter
Photos of this HDB
Location of this property
More estate type list in D25 - Woodlands