Condominium for Sale - Sky Habitat - D20 - Ang Mo Kio - Bishan Street 15 - 5 048 500 SGD - 94916

5 048 500 SGD

View to offer
ROSEMARY LAU CA CHENG
ROSEMARY LAU CA CHENG
Property Agent

Verified number: +6596150215

https://agent.sg/R055964H
Write message to

+65

Share this listing
Description

Price adjusted, with deferred payment scheme

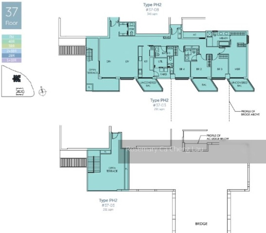
SINGLE STOREY PENTHOUSE
morning sun
4 Bedrooms
terrace with trellis

Moshe Safdie's architecture
Iconic Architecture
One of the building icons in Singapore, recognisable from afar
Developer : Bishan Residential Development Pte Ltd
(JV between Capitaland Residential
Singapore and Mitsubishi Estate Asia Pte Ltd)
Construction company: Shimizu Corporation
Visit us, Call Rosemary Lau ***** for an appointment!

2 blocks of 38-storey, total 509 units
with two basement carparks, a landscape deck
and other ancillary facilities

Walking distance to Bishan MRT(7-8mins)
Walking distance to Junction 8 (full neighbourhood amenities)
Full condo facilities
Great condo culture, council members and facebook grp

Good regular layout for ease of furnishing
Efficient space usage with no wastage

Available are:
Various floorplans of penthouses
varying prices, different facings and views

Visit us, Call Rosemary Lau ***** for an appointment!

Estate details

Sale

Sky Habitat

Bishan Street 157

5 048 500 SGD

View to offer

4

0

Condominium

2551 sqft

1978

94916

99-year Leasehold

Location of this property
More estate type list in D20 - Ang Mo Kio