Land only for Sale - Goodman Crest - D15 - Joo Chiat - Goodman Crest Goodman Road Singapore - 4 800 000 SGD - 1074584

4 800 000 SGD

Normal
CHOO YAK KIANG
CHOO YAK KIANG
Property Agent

Verified number: +6584998822

https://agent.sg/R027919Z
Write message to

+65

More estates from this advertiser
Share this listing
Description

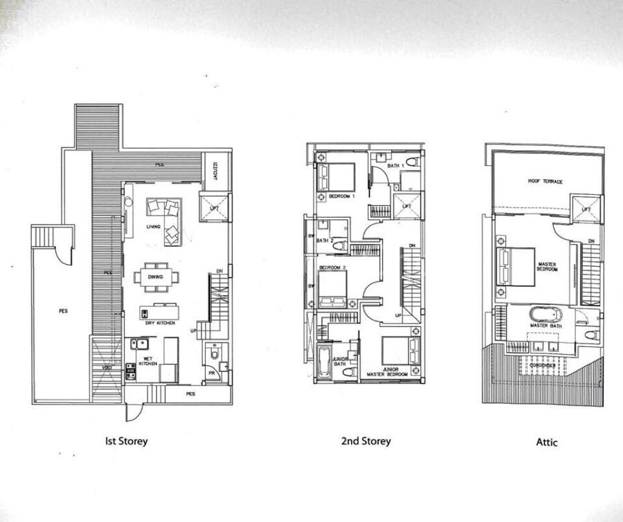
3sty with basement cluster detached with lift & 30m pool.
Basement: family area, game room, bomb shelter, helper room, toilet & pantry.
Mezzanine: guest room ensuite & lift.
1st flr: living, dining, wet & dry kitchen, guest toilet, patio & lift.
2nd flr: 3 bedrooms ensuite & lift.
3rd flr: masterbed room ensuite, bathroom, lift & patio.
Build up 5941sf, freehold, 2 carpark lots. Selling $4.8 mil $807 psf.
Interested ps whatsapp or call Eddie Choo ***** Orangetee & Tie
CEA R027919Z

Walking distant to Chong Cheng High,
Canadian College, Dakota MRT and to many F&B outlet

Estate details

Sale

Goodman Crest

Goodman Crest Goodman Road, Singapore0

4 800 000 SGD

6

7

5 sqft

1074584

Facilities
Key features:
  • Balcony
  • Renovated
  • Roof Terrace
  • Bomb Shelter
  • Fibre Ready
  • Maid's Room
  • High Ceiling
  • Patio / PES
Location of this property
More estate type list in D15 - Joo Chiat