Condominium for Sale - Coco Palms - D18 - Tampines - Coco Palms 27 Pasir Ris Grove Singapore - 1 595 000 SGD - 955364

1 595 000 SGD

Normal
TAN ENG WEE
TAN ENG WEE
Property Agent

Verified number: +6582822646

https://agent.sg/R000397F
Write message to

+65

Share this listing
Description

Developer's Sale Team
For all other Prices and Star Buy, Please SMS ***** me for detail information.

Other projects available. Just one call and you find out all.

Property Type: CONDO
Developer: Hong Realty Pte Ltd, CDL, Hong Leong Holdings Ltd
Road: Pasir Ris Grove
Tenure: 99 from 07/01/2008
TOP Date: 06/2019 expected
District: 18
Postal Code: 518144

Unit Info:
Total Units: 944 units and 6 shops.
Site Area: 446857 sq.ft. (41514 sq.m.)

1 Bedroom (137 units): 43 to 58 sq.m. (463 to 624 sq.ft.)
2 Bedrooms (249 units): 69 to 111 sq.m. (743 to 1195 sq.ft.)
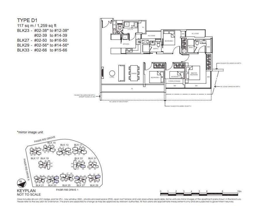
3 Bedrooms (228 units): 84 to 116 sq.m. (904 to 1249 sq.ft.)
3 Bedrooms + Study (69 units): 102 to 133 sq.m. (1098 to 1432 sq.ft.)
4 Bedrooms (71 units): 117 to 155 sq.m. (1259 to 1668 sq.ft.)
4 Bedrooms + Study (87 units): 128 to 160 sq.m. (1378 to 1722 sq.ft.)
3 Bedrooms Dual Key (29 units): 107 to 145 sq.m. (1152 to 1561 sq.ft.)
4 Bedrooms Dual Key (24 units): 136 to 137 sq.m. (1464 to 1475 sq.ft.)
5 Bedrooms (33 units): 162 to 199 sq.m. (1744 to 2142 sq.ft.)
Penthouses (17 units): 162 to 289 sq.m. (1744 to 3111 sq.ft.)
Shops (6 units): 56 to 94 sq.m. (603 to 1012 sq.ft.)

Other Info :
Nearby Amenities: Schools
Elias Park Primary School (435m)
Coral Secondary School (512m)
Coral Primary School (593m)
Park View Primary School (1029m)
Hai Sing Catholic School (1049m)
Meridian Junior College (1135m)
Siglap Secondary School (1246m)

MRT
Pasir Ris MRT Station (510m)

Community Centres
Pasir Ris Zone '14' Residents' Committee (605m)
Pasir Ris Elias Community Club (886m)

Facilities :
Swimming Pool
Aqua Gym
Hydrotherapy Pool
Salt Water Pool
Steam Room
Tennis Court
BBQ Area
Gym
Function Hall
Games Room
Jogging Track
Security
Carparks

Estate details

Sale

Coco Palms

Coco Palms 27 Pasir Ris Grove, Singapore0

1 595 000 SGD

4

3

1 sqft

955364

Facilities
Key features:
  • Low Floor
  • Fibre Ready
  • Greenery View
  • Pool View
  • High Ceiling
Photos of this Condo
Location of this property
More estate type list in D18 - Tampines