Condominium for Sale - RV Residences - D10 - Bukit Timah - River Valley Road - 2 300 000 SGD - 96900

2 300 000 SGD

Negotiable
TIEN MUI FONG
TIEN MUI FONG
Property Agent

Verified number: +6582989228

https://agent.sg/R019747I
Write message to

+65

Share this listing
Description

999-yr, Great World MRT, brand new, immediate occupation, various sizes are available. Appointed marketing agent
Viewing by appointment

Various locations, sizes and types are available. Visit dengmeihong.com and dengmeihong.stproperty.com.sg for more listings.

For sale, purchase or lease of residential and commercial properties, please contact Mei Hong, Senior Marketing Director and top No.1 Team Leader, at *****.

Estate details

Sale

RV Residences

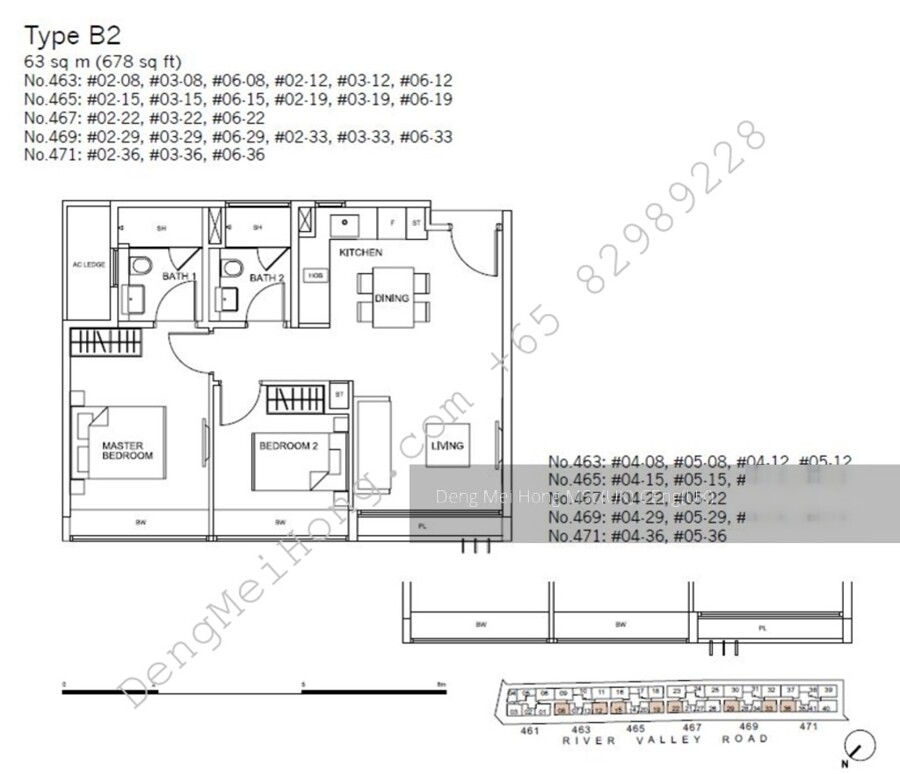
River Valley Road467

2 300 000 SGD

Negotiable

3

0

Condominium

1216 sqft

1891

96900

999-year Leasehold

Photos of this Condo
Location of this property
More estate type list in D10 - Bukit Timah