Condominium for Sale - OUE Twin Peaks - D09 - Orchard Road - Leonie Hill Road - 3 665 380 SGD - 93435

3 665 380 SGD

Guide price
TAN TIAM JOO PATRICK
TAN TIAM JOO PATRICK
Property Agent

Verified number: +6598311679

https://agent.sg/R026838D
Write message to

+65

Share this listing
Description

Twin Peaks is a 99-years leasehold condominium development located at 33 Leonie Hill Road, Singapore 239233 in District 09. It stands 36 storeys tall and comprises a total of 462 fully furnished units with sophisticated pieces by renowned designers such as Hans Wegner, Gerrit T. Rietveld, Charles & Ray Eames, Tom Dixon and Matthew Hilton. It is within walking distance to Somerset MRT Station and just minutes away Orchard Road.
OUE Twin Peaks’s luxurious facilities include lush tropical gardens designed by internationally acclaimed architect Bill Bensley, 35m lap pool with exotic artwork installations. It provides a sublime escape at the doorstep of your own home replete with a choice of luxurious amenities such as stylish jet spas, exclusive dining suites and sky gyms offering inspiring views of the city. Open-air Sky Loggias on the 36th storey, together with a rooftop bar, makes the excellent venue choice for private parties against the backdrop of a breathtakingly skyline.


Amenities near Twin Peaks

Several feeder bus services are available near Twin Peaks located at Airview Towers, Winsland House and Lucky Plaza. It is also close to international institutions such as Swedish Supplementary Education School, Overseas Family School and ISS International Elementary School.

Twin Peaks is also within walking distance to Singapore landmark shopping malls such as ION Orchard, Paragon, Takashimaya and amenities such as hospitals, supermarkets, restaurants, banks and more.

Estate details

Sale

OUE Twin Peaks

Leonie Hill Road33

3 665 380 SGD

Guide price

3

0

Condominium

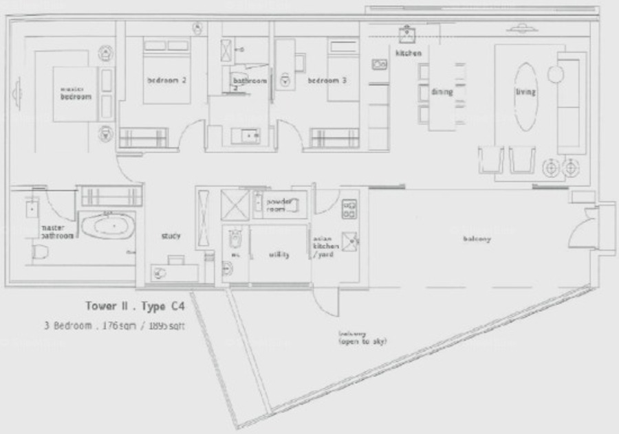
1399 sqft

2620

93435

Location of this property
More estate type list in D09 - Orchard Road