Condominium for Sale - Northvale - D23 - Choa Chu Kang - Choa Chu Kang Loop - 1 080 000 SGD - 82408

1 080 000 SGD

Negotiable
GO CHOON KEONG
GO CHOON KEONG
Property Agent

Verified number: +6592702000

https://agent.sg/R010692I
Write message to Chase Go

+65

Share this listing
Description

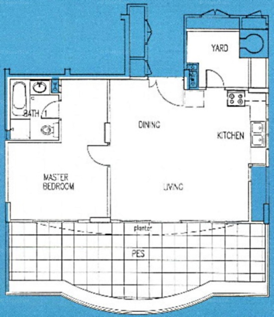
Price Reduced ! REMARKET! Cheap ! Cheap ! Cheap! Urgent Sale & Serious Sellers ! FOR SALE ! 3 bedrooms+ 1 Maids room, Northvale Condominum ( Choa Chu Lang Loop) , 1 min walk to CCK MRT/Lot 1 Shopping centre . Superb Pool View & Greenery View ~!! High Floor ! 1270sqft.Best Stack Best Price Best View ~! Viewing Appt Call Chase *****. Hurry Dont Wait ~!! Call me now.

Estate details

Sale

Northvale

Choa Chu Kang Loop73

1 080 000 SGD

Negotiable

3

Condominium

1270 sqft

850

82408

99-year Leasehold

Location of this property
More estate type list in D23 - Choa Chu Kang